Grundschule Heilbronn

Neue Grundschule Innenstadt

Die neue dreizügige Ganztagsgrundschule bildet als kompakter, viergeschossiger Solitär den städtebaulichen Abschluss des bestehenden Schulensembles und schafft durch eine konsequente Flächeneffizienz Raum für großzügige Außenbereiche der angrenzenden Schulen.
Ein zentraler Schulhof im Norden vernetzt als Campusmitte die umliegenden Einrichtungen, während ein geschützter Grundschulhof im Osten und ein halböffentlicher Mensahof im Westen unterschiedliche Nutzungsqualitäten bieten.
Die Architektur öffnet sich zur Campusmitte mit einer einladenden Aula, die Innen- und Außenräume verknüpft und vielfältige schulische wie öffentliche Nutzungen ermöglicht.
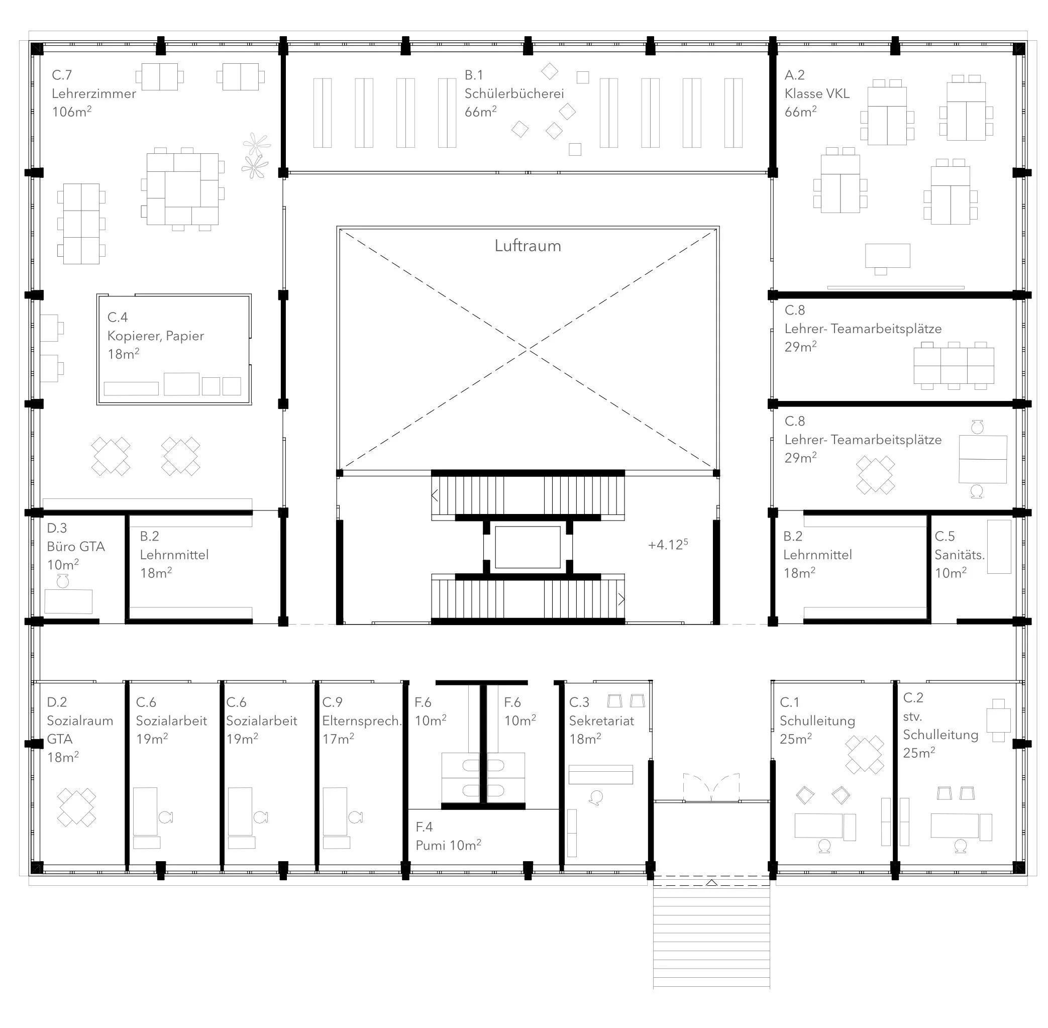
In den oberen Geschossen organisieren sich helle Lerncluster um zentrale Marktplätze, kurze Wege und klare Orientierung fördern dabei die Funktionalität.
Der prägnante Holzbau mit filigraner Fassadengliederung, umlaufendem Fensterband und integrierter Photovoltaik vereint eine zeitgemäße, nachhaltige Architektursprache mit hoher Aufenthaltsqualität.

Wettbewerb 2025 | Realisierungsteil 2.Preis | Ideenteil 1. Preis
Team: Dominik Schad, Dario Bittkau
in Zusammenarbeit mit Romina Streffing Architektin
Freiraum: Ottl.la
Visualisierungen: Anna Gassner

Weiter
Weiter

GRUNDSCHULE | ELVERSBERG | 2025 | 3.PREIS